in , ,

Sky Condos by DCPP Arquitectos

Sky Condos DCPP

Project: Sky Condos
Designed by DCPP Arquitectos
Size: 12 223 m2
Location: Lima, Peru 
Website: www.dcpparquitectos.com
Sky Condos in Lima offer twenty floors of modern day urban living, the tower is work of DCPP Arquitectos.

Sky Condos DCPPSky Condos DCPPSky Condos DCPPSky Condos DCPPSky Condos DCPPSky Condos DCPPSky Condos DCPPSky Condos DCPPSky Condos DCPPSky Condos DCPPSky Condos DCPPSky Condos DCPPSky Condos DCPPSky Condos DCPPSky Condos DCPP

From the Architects:

Located on a privileged area of ??the City of Lima and with Views Towards the golf course, we Sought to create an icon for the Future, a new luxury housing concept in Latin America; Combining the concept of outer space to Incorporating the inner life of the the apartments and Creating a new relation Between Public and Private areas.

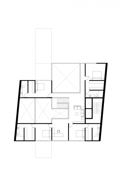
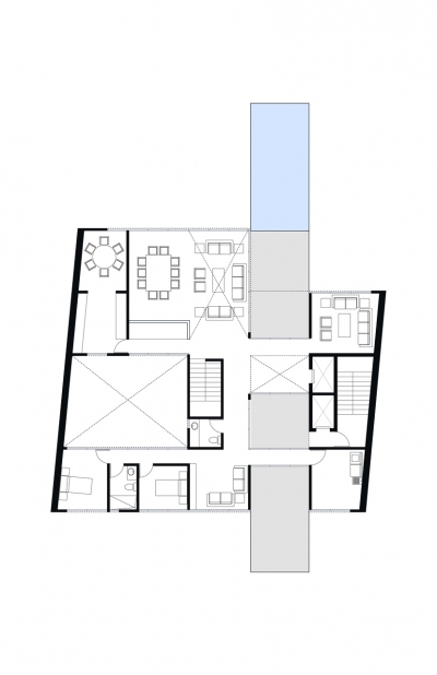
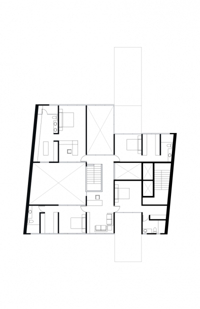
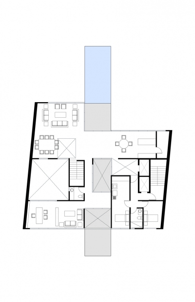
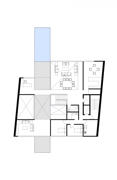
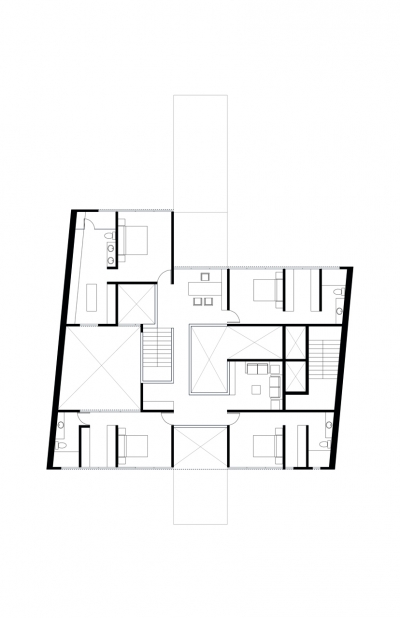
We wanted to get away from the traditional tower, instead of piling up a series of identical apartments, we created three types to adjust That Different Necessities, Each One With A clear individuality using the privative spaces outside as our main core.

We Should not Believe That an apartment outside LACK spaces, this is why our main space Each apartment is in the public area outside the pool Which contains a series of terraces and bring dynamism to the That whole tower.These terraces fill the apartment with natural light and create a game of lights and shadows.

The 20 floor tower has a facade That Is Mainly transparent Allowing the integration of the building to the outside; Generating Natural lighting and ventilation crossed in all the spaces without sacrificing the privacy inside the apartments.

The floor plan is open to looking for all along the plot Transparency and Generating the sensation That the apartments are suspended.

E8 Building by Coll-Barreu Arquitectos

U27 Office Building by Park Associati