
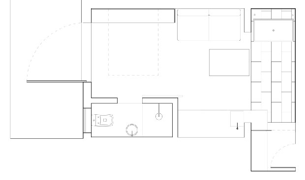
Architecture practice Studio Edwards has shaped a tiny Melbourne apartment into a Airbnb kind of a rental property, however the guests are also invited to buy the furniture, art and accessories when they leave from property company Microluxe. This is another successful example of a showroom apartment, with a shopable interior design-like sentiment. The apartment is placed on the ground lever of a five floor building.
To discover more of the apartment scroll down.










Find more Studio Edwards projects on their official web page: studio-edwards.com

