Project: House Phinney
Designed by Pb Elemental Architecture
Project Team: Dave Biddle & Chris Pardo
Contractor: Logan’s Hammer
Project Area: 2510 sqf
Location: Seattle, Washington, USA
Website: www.pbelemental.com
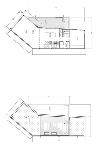
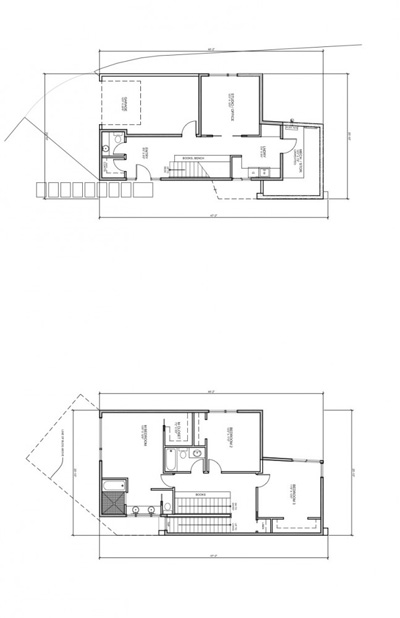
Pb Elemental Architecture reworks the conventional floor plan design to maximize the space for House Phinney built in Seattle. For more images continue after the jump:
From the Architects:
This 2510 sqf single family home located in Seattle’s Phinney Ridge neighborhood. This home was designed for a young family on a small in-fill lot. The lot was very challenging just over 2000 sft with a access easement covering a portion of the southwest corner. This created a situation where the building footprint covered the majority of the yard, so it was essential to capture outdoor space on the structure. This led to the reverse floor plan (living on the third level), allowing the main spaces to easily access outdoor space, light and view. The homeowners created a welcoming contrast by their choices in furniture and wall coverings. To maintain a visual connection to the street we designed the stair to the main living level to be transparent so you can see and feel the activity. The upper level opens to a West facing deck and exterior stair leading to a view roofdeck which overlooks Ballard and the Puget Sound.
Source Archdaily.*




















One Comment
One Ping
Pingback:Pb Elemental Architecture's Phinney House