
DC Alliance recently completed their latest project in Ningbo, China – the Ningbo Hanvos School. Take a look at the complete story after the jump.



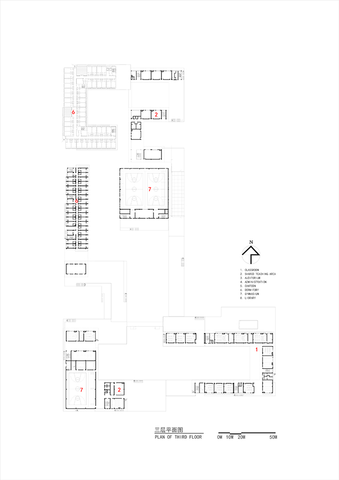
From the architects: Ningbo Hanvos School is located in Zhenhai District, Ningbo. According to the general requirements of “internationalization, high quality and characteristic”, it is built as a new international boarding school with typical characteristic of internationalized education. The construction area is around 54000 ?, which covers all learning stages from primary school to high school. Due to the uncertain enrollment, this project adopts strategy of overall planning and phased implementation: the school is designed to accommodate 1200 students. The first phase is designed to hold 600 students with a construction area about 37000?; In terms of education architecture, the first phase contains international school teaching building, complex building, administrative office, school restaurant, international student dormitory and stadium, etc. The second phase includes gymnasium, international education center and additional dormitories.
RELATED: FIND MORE IMPRESSIVE PROJECTS FROM CHINA
Concept Introduction
“Folded Courtyard” is the core design concept of this school. The stereoscopic organization of school space unfolds in both horizontal and vertical directions. By being bended horizontally, the site is subdivided into different courtyards corresponding to different functional requirements: teaching, activities, livelihood, administration, recreation and etiquette, etc. Each is placed in its proper place; at the same time, in the vertical direction, the platforms for different teaching space become activity space which is overlapped, open and active. There are vertical connections among different floors. Thus the air settlement is established under the premise of large partition of “folded courtyard”. Meanwhile, due to the existence of “folded courtyard”, the pressure on ground activity area is reduced obviously. That makes it possible to plant lots of trees in ground yard.




Project Innovation
“Zero Distance” space conversion: on the one hand, the internal space is wrapped by platforms in layers. When room’s door is opened, users will enter continuous public space, and the space conversion in horizontal becomes the shortest; on the other hand, vertical connection becomes the most important element in the space system. The vertical space element is no longer defined as stairs and steps. Vertical height space and terrace are designed in purpose to strengthen communication among different layers. That makes the process of vertical traffic become a process of public activities. Thus a conceptual “Zero Distance” organization mode is created between the internal space and the external space. This organization mode also creates a new space carrier for the new teaching mode.






Design Challenges
The contradiction between limited project land use and the high demand of international teaching mode for the site is the biggest challenge in this design. Under the pressure of maximize the playground, Hanvos School takes the approach of “asking for space from the sky”: the school core public space is located at the top of building terrace, and basic teaching unit rooms are at the bottom of terrace. The way of access is from the bottom up, and public space is not only permeated to the whole campus through different vertical traffic, but also connects different layers of public space as a whole. This maximizes the connection between the entire public space and the outside. All playground faces to the sky and gets the best light and views. In fact, the final addition of more than 10000? aerial platform is a small record for school design.








Sustainability
Materials for wall: Barotropic aerated concrete bloc B6
Thermal insulation material: XPS, Mineral (rock) wool felt, Inorganic lightweight aggregate insulation mortar type C
Energy measures: Rooftop solar energy storage











Name of Project: Ningbo Hanvos School
Architecture: DC Alliance – www.dccd.com.cn
Design Team: Dong Yi, Wang Han, Chen Cheng, Hu Zhuolin, Huang Zhigang, Zhou Yuandan, Long Bin, Liu Lili, Zhou Yang
Project Site: No. 619, West Yonghe Road, Luotuo Street, Zhenhai District, Ningbo, China
Project Type: Public Building
Site Area: 53330 sqm
Building Area: 67045.38 sqm
Completion Time: 2019.12
Photographs: Liu Yang, Xing Zhi Ying Xiang
Main Materials: Exterior Wall Coating (Nippon Paint), Pavement (GOLDME), Door & Window System (Shide)

