in ,

White House by Need21

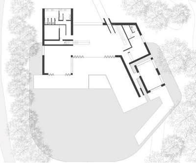
White House Need21

Project: White House
Designed by Need21
Location: Gyeonggi-Do, South Korea
Website: www.need21.co.kr
White House design project by Need21 has gathered a lot of attention, including the award on 2011 Korea space design.

White House Need21White House Need21White House Need21White House Need21White House Need21White House Need21White House Need21White House Need21White House Need21White House Need21

Source Designers Party. *

Serpentine Gallery Pavilion by Herzog & de Meuron + ai weiwei

Spiretec Urban Plaza by Dinkoff Architects & Engineers